Les infos Essentielles
Découvrez un nouveau programme immobilier d’exception niché au calme, en retrait de l’avenue du Général de Gaulle à Clamart. Dans un environnement résidentiel, à deux pas des écoles (de la crèche au lycée), des équipements sportifs et culturels, et à proximité des espaces verts parc Robert Auzelle à 800 mètres et Bois de Clamart à seulement 1 km cette résidence allie confort, accessibilité et qualité de vie.
Inspirée du style Art Déco, l’architecture raffinée met en valeur une élégante façade en pierre de taille. La résidence propose 56 appartements allant du studio au 5 pièces duplex, tous prolongés par des espaces extérieurs : jardins privatifs, balcons ou terrasses plein ciel.
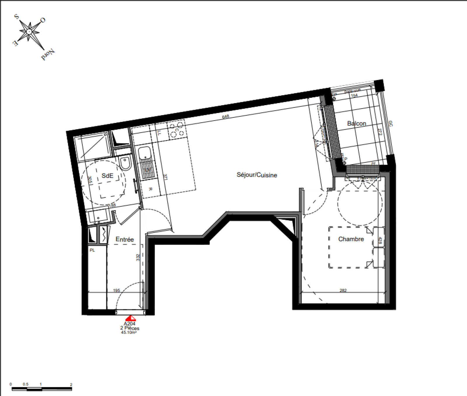
Le 2P proposé, situé au 2e étage, est composé d'un séjour/cuisine ouvert sur un espace extérieur, d'une chambre et d'une salle d'eau.
Idéalement desservi, le tramway T6 station « Pavé Blanc » se trouve à moins de 200 mètres, facilitant vos déplacements vers Châtillon-Montrouge (métro ligne 13) et toute la métropole parisienne.
Un cadre de vie recherché, une architecture élégante, un environnement verdoyant et des prestations de qualité : une adresse rare à Clamart, à découvrir sans tarder.
Localisation Du bien
-
Commerces et santé
-
Loisirs
-
Ecoles
-
Transports
-
Pratique
Les infos Energetiques
Ce site est protégé par reCAPTCHA, les Politiques de Confidentialité et les Conditions d'Utilisation de Google s'appliquent.
Détails des diagnostics énergétiques
APPARTEMENT 2P - CLAMART
