Les infos Essentielles
Nichée dans un environnement verdoyant et paisible à deux pas du parc Henri Sellier, la résidence bénéficie d’un cadre de vie privilégié au cœur de l'emblématique Cité-Jardin. Elle permet de concilier parfaitement élégance architecturale et douceur de vivre au quotidien. Les commerces, le marché et les écoles, dont le tout nouveau groupe scolaire François Peatrik, sont accessibles à pied, tandis que le RER B « Robinson » se situe à 14 minutes et les axes routiers (A86) à seulement 3 km.
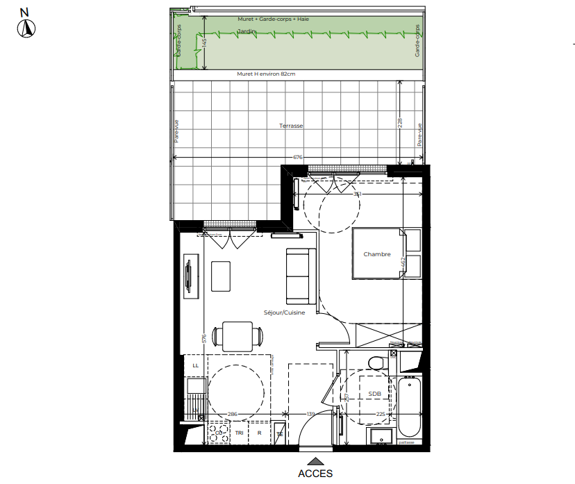
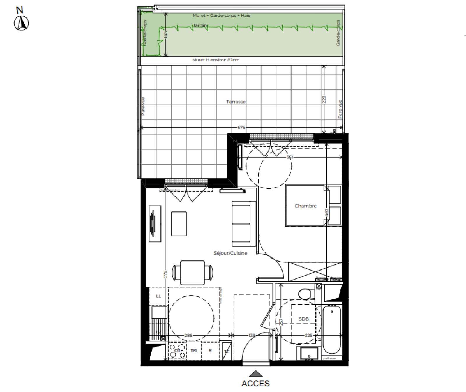
Parmi les atouts de ce programme intimiste : une architecture inspirée du style Art déco, un jardin paysager central agrémenté d’une micro-forêt urbaine, ainsi que des prestations intérieures soignées pour ses 61 appartements, allant du studio au 5 pièces. Chaque logement a été conçu pour offrir un bien-être optimal, la majorité disposant de superbes espaces extérieurs tels que des balcons, des jardins privatifs ou des terrasses, incluant un rooftop unique pour les plus grands volumes.
Une opportunité rare pour devenir propriétaire, réaliser un investissement locatif ou s’offrir un pied-à-terre dans un secteur historique, dynamique et en plein renouveau aux portes de Paris.
Localisation Du bien
-
Commerces et santé
-
Loisirs
-
Ecoles
-
Transports
-
Pratique
Les infos Energetiques
Ce site est protégé par reCAPTCHA, les Politiques de Confidentialité et les Conditions d'Utilisation de Google s'appliquent.
Détails des diagnostics énergétiques
APPARTEMENT 2P - LE-PLESSIS-ROBINSON
