Les infos Essentielles
Immeuble neuf situé dans un environnement résidentiel et pavillonnaire, proche de toutes les commodités (transports, commerces, écoles, restaurants et services)
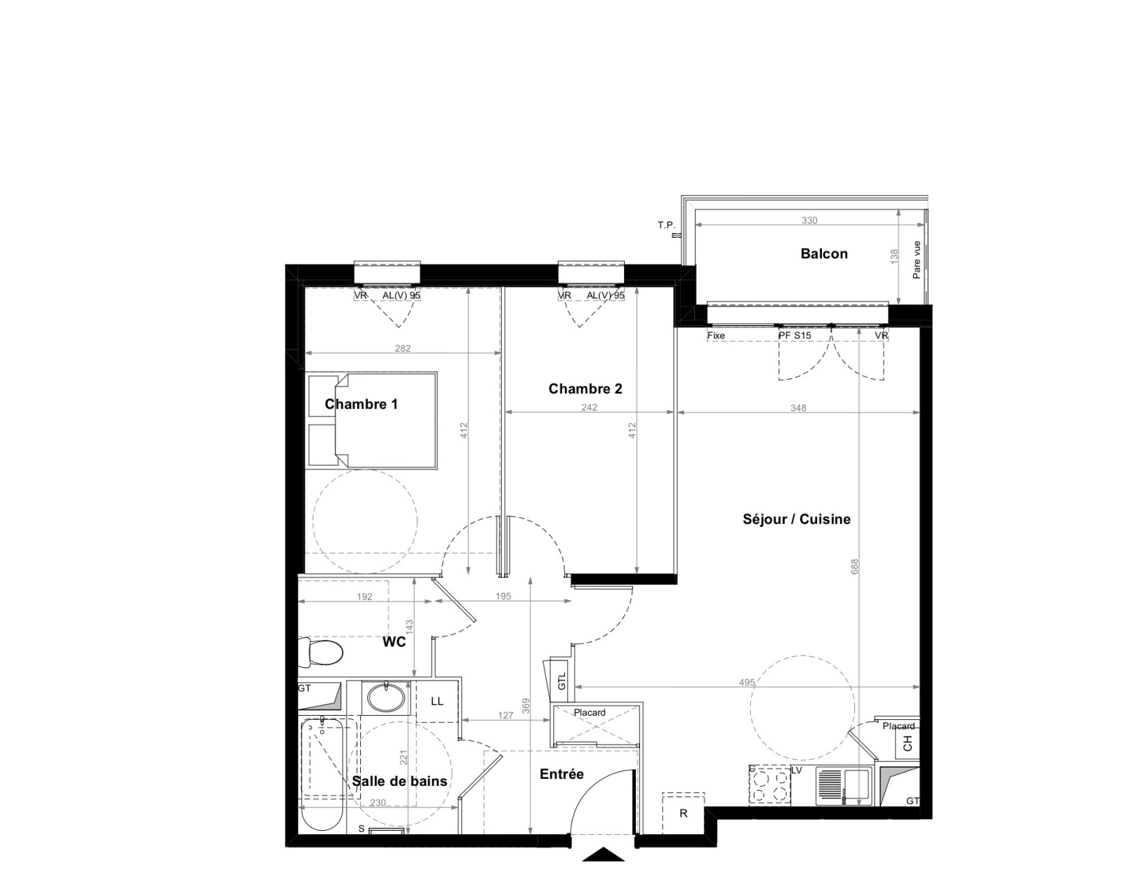
Dans un immeuble BBC, normes PMR, cet appartement 3P se composera d'un séjour cuisine ouvert sur un espace extérieur, de deux chambres, d'une salle de bains et WC séparés.
Un emplacement de stationnement vient compléter le bien.
3 logements disponibles. Toutes les informations sont disponibles au sein de l'agence.
Localisation Du bien
-
Commerces et santé
-
Loisirs
-
Ecoles
-
Transports
-
Pratique
Les infos Energetiques
La base légale du traitement repose sur l’intérêt légitime de l'Agence / du Réseau.
Elles sont conservées jusqu'à demande de suppression et sont destinées à l'Agence / au Réseau.
Conformément à la loi « informatique et libertés », vous pouvez exercer votre droit d'accès aux données vous concernant et les faire rectifier en contactant l'Agence / le Réseau.
Si vous estimez, après avoir contacté l'Agence / le Réseau, que vos droits « Informatique et Libertés » ne sont pas respectés, vous pouvez adresser une réclamation à la CNIL.
Nous vous informons de l’existence de la liste d'opposition au démarchage téléphonique « Bloctel », sur laquelle vous pouvez vous inscrire ici : https://www.bloctel.gouv.fr
Dans le cadre de la protection des Données personnelles, nous vous invitons à ne pas inscrire de Données sensibles dans le champ de saisie libre
Ce site est protégé par reCAPTCHA, les Politiques de Confidentialité et les Conditions d'Utilisation de Google s'appliquent.
Détails des diagnostics énergétiques
APPARTEMENT 3P - 60.40m²
