
Les infos Essentielles
Résidence neuve située dans un environnement résidentiel et pavillonnaire, proche de toutes les commodités (transports, commerces, écoles, restaurants et services)
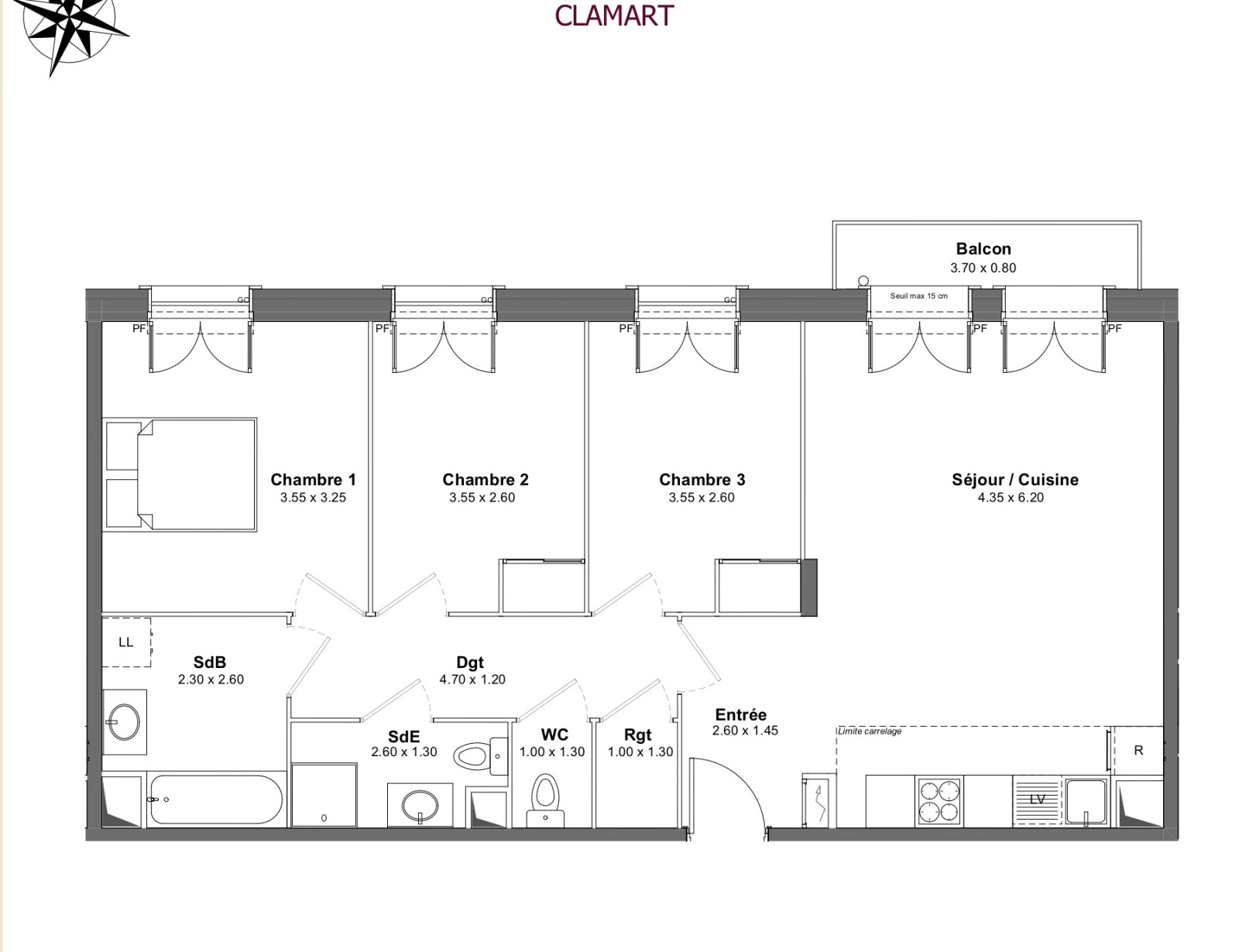
Dans un immeuble BBC, normes PMR, cet appartement 4P se composera d'un séjour/cuisine ouvert sur un balcon, de trois chambres, d'une salle de bains, d'une salle d'eau et d'un espace de rangement.
Côté transport, la ligne N, arrêt Clamart, direction Paris Montparnasse accessible à 2 minutes à pied.
Un emplacement de stationnement vient compléter le bien.
9 logements disponibles sur ce programme. Toutes les informations sont disponibles au sein de l'agence.
Localisation Du bien
-
Commerces et santé
-
Loisirs
-
Ecoles
-
Transports
-
Pratique
Les infos Energetiques

La base légale du traitement repose sur l’intérêt légitime de l'Agence / du Réseau.
Elles sont conservées jusqu'à demande de suppression et sont destinées à l'Agence / au Réseau.
Conformément à la loi « informatique et libertés », vous pouvez exercer votre droit d'accès aux données vous concernant et les faire rectifier en contactant l'Agence / le Réseau.
Si vous estimez, après avoir contacté l'Agence / le Réseau, que vos droits « Informatique et Libertés » ne sont pas respectés, vous pouvez adresser une réclamation à la CNIL.
Nous vous informons de l’existence de la liste d'opposition au démarchage téléphonique « Bloctel », sur laquelle vous pouvez vous inscrire ici : https://www.bloctel.gouv.fr
Dans le cadre de la protection des Données personnelles, nous vous invitons à ne pas inscrire de Données sensibles dans le champ de saisie libre
Ce site est protégé par reCAPTCHA, les Politiques de Confidentialité et les Conditions d'Utilisation de Google s'appliquent.
Détails des diagnostics énergétiques

CLAMART - GENERAL DE GAULLE - 4P
