
Les infos Essentielles
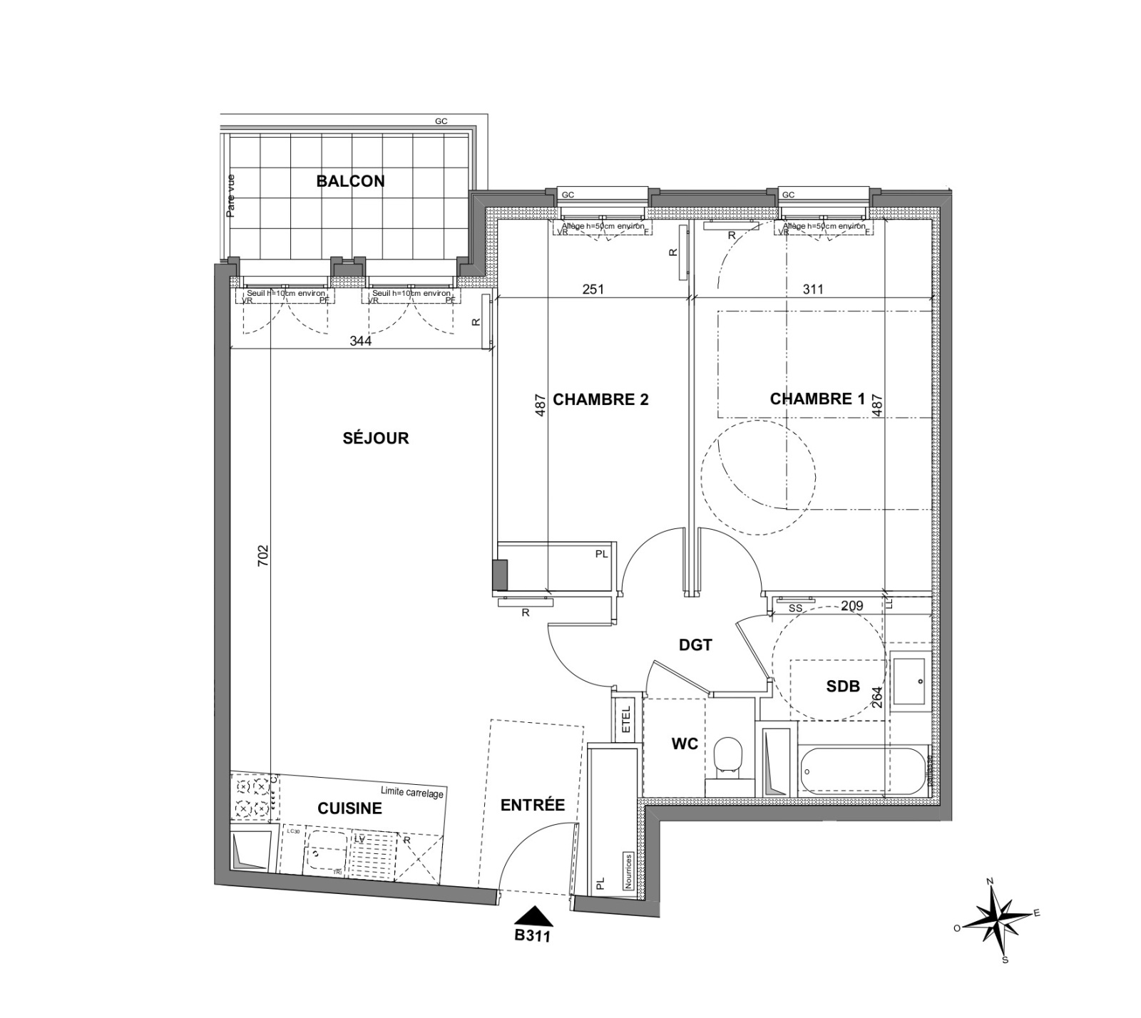
Au sein d'une nouvelle résidence privilégiée située au Plessis-Robinson, au troisième étage, un appartement de trois pièces principales composé d'un séjour/cuisine ouvert sur un balcon, de deux chambres et d'une salle de bains avec WC séparés.
Un emplacement de stationnement vient compléter le bien.
RE 2020 avec pompe à chaleur.
Un emplacement de stationnement viennent compléter le bien.
A proximité du tramway T6 et au pied du tramway T10 . Accès direct à l'autoroute A86.
Localisation Du bien
-
Commerces et santé
-
Loisirs
-
Ecoles
-
Transports
-
Pratique
Les infos Energetiques

La base légale du traitement repose sur l’intérêt légitime de l'Agence / du Réseau.
Elles sont conservées jusqu'à demande de suppression et sont destinées à l'Agence / au Réseau.
Conformément à la loi « informatique et libertés », vous pouvez exercer votre droit d'accès aux données vous concernant et les faire rectifier en contactant l'Agence / le Réseau.
Si vous estimez, après avoir contacté l'Agence / le Réseau, que vos droits « Informatique et Libertés » ne sont pas respectés, vous pouvez adresser une réclamation à la CNIL.
Nous vous informons de l’existence de la liste d'opposition au démarchage téléphonique « Bloctel », sur laquelle vous pouvez vous inscrire ici : https://www.bloctel.gouv.fr
Dans le cadre de la protection des Données personnelles, nous vous invitons à ne pas inscrire de Données sensibles dans le champ de saisie libre
Ce site est protégé par reCAPTCHA, les Politiques de Confidentialité et les Conditions d'Utilisation de Google s'appliquent.
Détails des diagnostics énergétiques

APPARTEMENT 3P - 60.40m²
