
Les infos Essentielles
Idéalement situé à 5 km de Paris, à deux pas de la place du Panorama et parfaitement desservi par le tramway T6. Ce projet résidentiel haut de gamme se distingue par ses espaces extérieurs généreux, conçus pour offrir confort et luminosité.
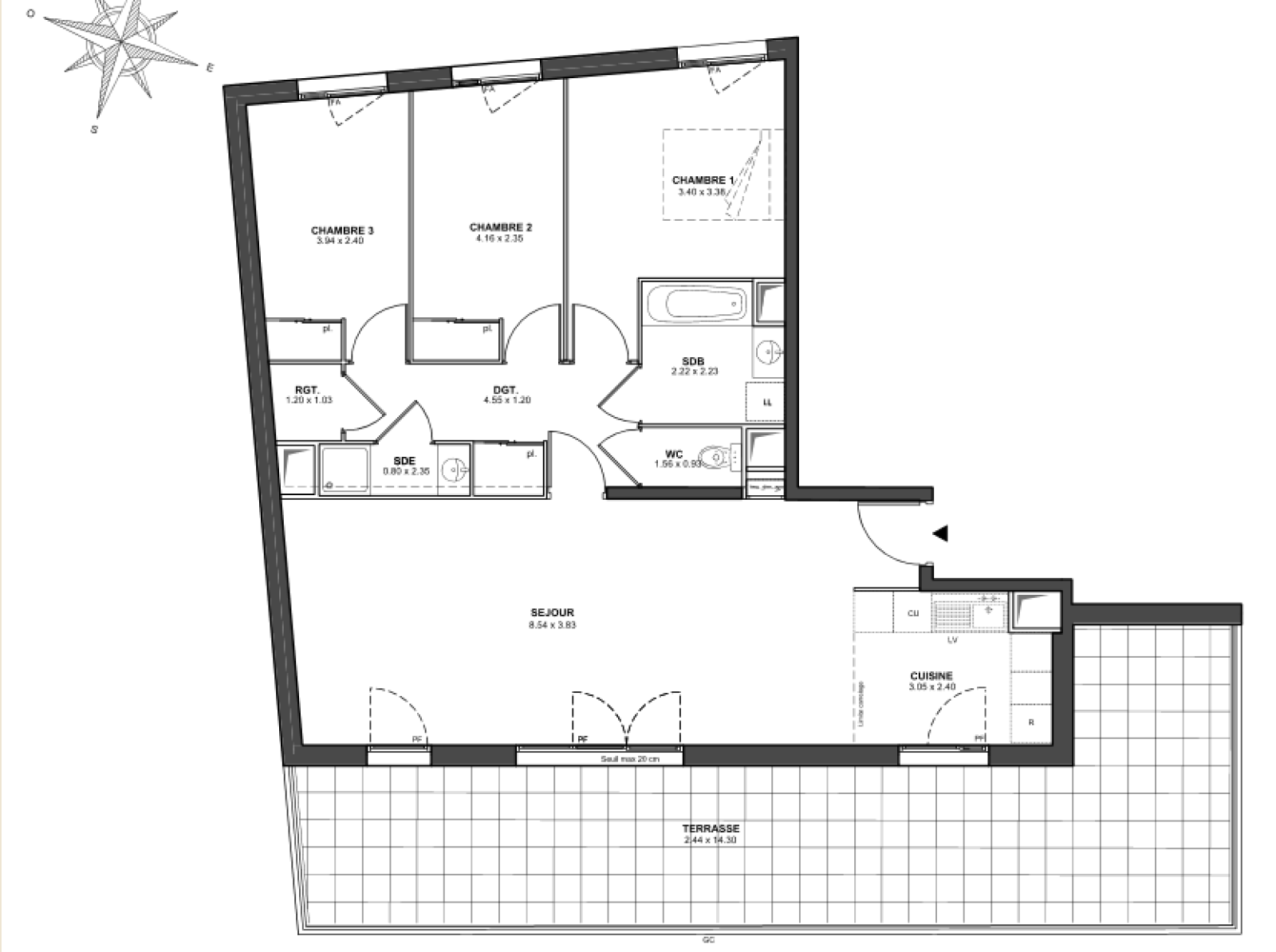
Dans un immeuble de standing, un appartement de 4 pièces principales.
Composé d'un séjour/cuisine de 40m² ouvert sur une terrasse de 40m² exposé SUD/EST. Le coin nuit est composé de 3 chambres, une salle de bains, une salle d'eau, WC séparés et un espace de rangement.
Plusieurs appartements disponibles. Pour plus de détails, contactez notre agence.
Localisation Du bien
-
Commerces et santé
-
Loisirs
-
Ecoles
-
Transports
-
Pratique
Les infos Energetiques

La base légale du traitement repose sur l’intérêt légitime de l'Agence / du Réseau.
Elles sont conservées jusqu'à demande de suppression et sont destinées à l'Agence / au Réseau.
Conformément à la loi « informatique et libertés », vous pouvez exercer votre droit d'accès aux données vous concernant et les faire rectifier en contactant l'Agence / le Réseau.
Si vous estimez, après avoir contacté l'Agence / le Réseau, que vos droits « Informatique et Libertés » ne sont pas respectés, vous pouvez adresser une réclamation à la CNIL.
Nous vous informons de l’existence de la liste d'opposition au démarchage téléphonique « Bloctel », sur laquelle vous pouvez vous inscrire ici : https://www.bloctel.gouv.fr
Dans le cadre de la protection des Données personnelles, nous vous invitons à ne pas inscrire de Données sensibles dans le champ de saisie libre
Ce site est protégé par reCAPTCHA, les Politiques de Confidentialité et les Conditions d'Utilisation de Google s'appliquent.
Détails des diagnostics énergétiques

APPARTEMENT 4P - CHATILLON
